Продаж будинку 280 кв.м в стилі Hi-Tech + тераси 120 кв.м + 25 соток в закритому котеджному місечку GoodLife Park, Вишгородський р-н (№ 22-379-973)
Ціна: 770 000 $

Характеристики
| Ціна: | 770 000 $ | 
|---|---|
| № об'єкта: | 22-379-973 | 
| Тип: | будинок | 
| Поверхів: | 2 | 
| Спалень: | 3 | 
| Площа будинку: | 280 м2 | 
| Ділянка: | 25 сот | 
| Додатково: | котеджне містечко | 
Адреса: Київська, Вишгородський, Лебедівка
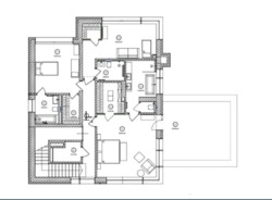
Продаж сучасного будинку 280 кв.м під чистове оздоблення + тераси 120 кв.м + ділянка 25 соток в закритому елітному котеджному містечку GoodLife Park (Вишгородський напрямок, гребля Київського моря. 13 км від КПП у Києві). Планувальне рішення передбачає велику гардеробну при вході, простору вітальню з каміном та з виходом на терасу, кухню-їдальню, кабінет з виходом на терасу (35 кв.м), 3 спальні зі своїми санвузлами та гардеробними (майстер спальня з виходом на терасу - 40 кв.м). Всі спальні мають панорамні вікна від підлоги до стелі зі спеціальним напиленням.
Стан: чистове оздоблення. В будинку виконані всі інженерні роботи (котельня, електрика, вентиляція з рекуперацією, кондиціювання ), встановлено конвектори та батареї, закуплено освітлення та камін. Дизайн-проект від Bogdanova Bureau. Виконано озеленення та автополив всієї ділянки. 
При будівництві будинку були використані екологічно чисті матеріали:
- зовнішні стіни – цегла М100 – 380 мм; утеплення – мінеральна вата 120 мм від Rockwool; декоративна штукатурка, фасадна дерев'яна дошка
- внутрішні перегородки - цегла - 120 мм
- монолітні перекриття
- вікна ТМ Alumil, потрійний склопакет, багатофункціональне мультискло Titan
- внутрішні інженерні мережі виконані з використанням труб Rehau, проведено водопостачання, водовідведення, водяний підігрів підлоги та опалення (газове та електричне). ГЕНЕРАТОР на все містечко!
- центральна система кондиціонування Daikin, центральна система вентиляції Komfovent.
У котеджному містечку унікальне поєднання природи, комфорту та сучасних технологій. Тут є все для здорового та активного способу життя (басейн для дітей та дорослих, пляж з лежаками, ресторан, поле для міні-футболу та волейболу, тенісні корти, дитячий майданчик та мотузкове містечко для дітей, яхт-клуб, ангар та стоянка для всіх) видів водного транспорту, міні-готель для друзів чи гостей, вертолітний майданчик, дитячий садок, лазневий та SPA комплекс). Безпека містечка під охороною 24 години на добу, датчики руху по периметру всієї території, тепловізори з боку води, відеоспостереження, патрульна служба, своя комунальна служба (сантехніки, електрики, садівники).


















 elite.estate.biz@gmail.com
 elite.estate.biz@gmail.com